767 Ivy Lane, Glencoe, IL 60022
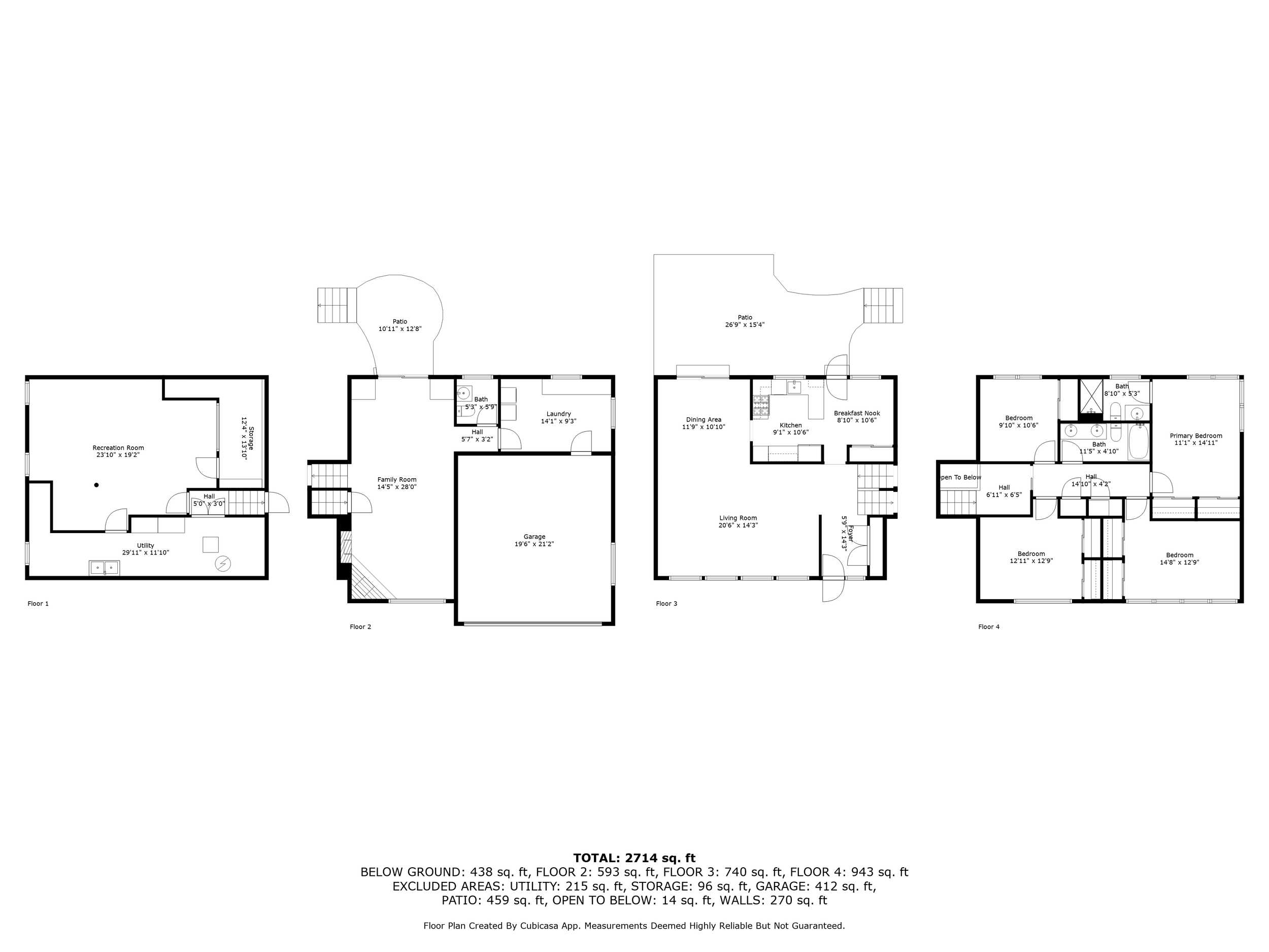
Tucked away on a private, tree-lined lot, this beautifully updated four-bedroom, two-and-a-half bath home blends mid-century character with modern comfort. Expansive windows frame serene views of nature and fill the interior with natural light, while beautiful hardwood floors and thoughtful updates create a fresh and inviting atmosphere throughout.
The main level opens with a spacious living room anchored by a wall of windows, flowing seamlessly into the dining room and out to the patio for easy entertaining. A bright kitchen features quartz countertops, crisp cabinetry, stainless steel appliances, and an adjoining breakfast nook with peaceful views of the backyard. Just steps away, a large family room with a fireplace offers a comfortable retreat with sliding doors to a lower patio. A powder room and large laundry/mudroom lead to the attached 2-car garage. Upstairs, you'll find a generous primary bedroom with an ensuite bath, three additional bedrooms, and an updated hall bath with dual sinks. The finished lower level extends the living space and is perfect for a gym, workshop, or recreation room.
Outside, the home is surrounded by mature trees and lush landscaping, offering a rare sense of privacy. Multiple patios overlook the deep yard, perfect for gatherings, gardening, or quiet afternoons.
Set on a quiet street yet close to schools, parks, town, and the lakefront, this is the perfect place to call home.
4 Bedrooms, 2 1/2 Baths, 2,276 sq.ft.
Sold for $950,000
